WoodHouse WC1
Woodhouse Boutique in Acre Road in Covent Garden was a small commercial fit out, and MSJ were commissioned to provide structure engineering design, to suit the architect's sharp detailing.
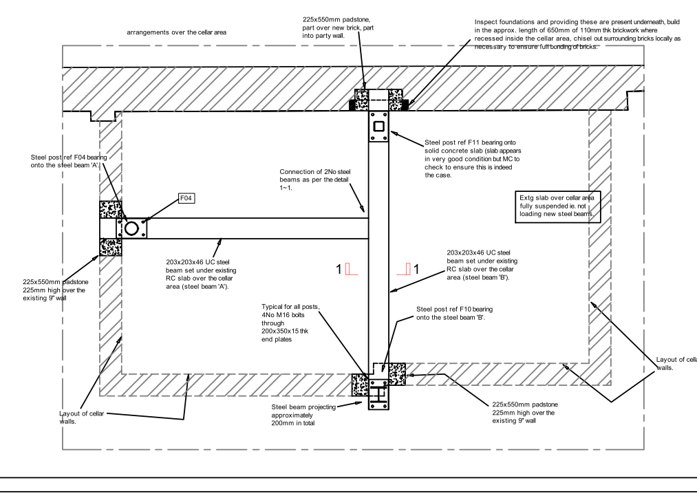
Great use of was made of some of the underlying basement walls, so that none of the new structures had to bear into any of the party walls, thus simplified and accelerating the building process greatly. The architect was Noble Associates and the contract value was £300,000.
Keep up To Date!
Keeping you updated on our past & present projects & processes.











