Tite St SW3 Arch web
Clelsea, Tite Road , Flat Extension and Renovation
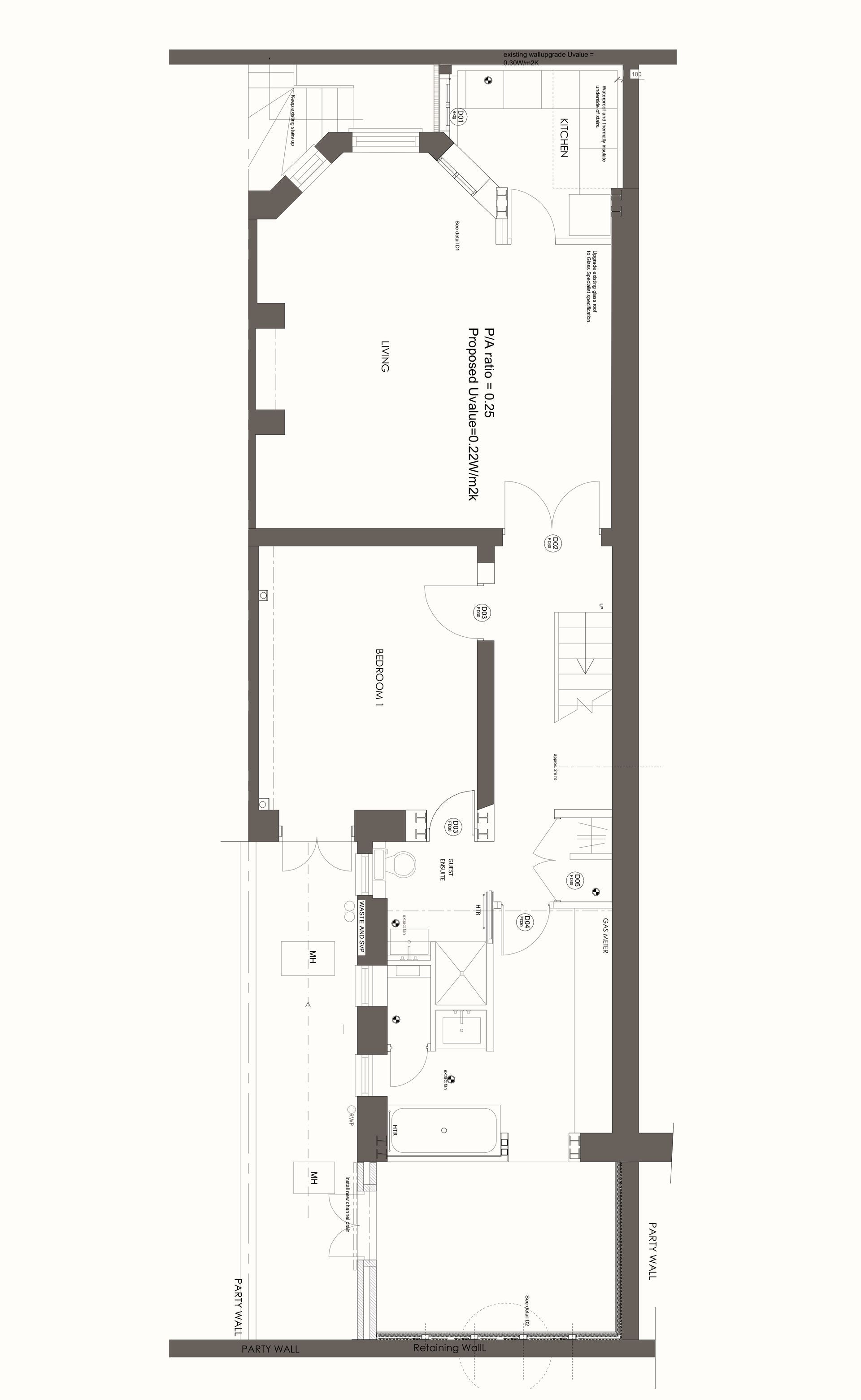
MSJ provided building regulation architectural and structural service for the renovation and extension of the one bedroom lower ground flat in Chelsea for a Developer Client.
Small infill extension at the back had to be carefully designed to fit all the constrains of this sensitive, tight London site. Extension under the street vaults provided an additional space for the small kitchen which allowed reconfiguration of the flat to create additional bedroom and bathroom.
Keep up To Date!
Keeping you updated on our past & present projects & processes.













