Wicklow Street
Kings Cross, Wicklow Street, New Build House
Kings Cross, New Build Home
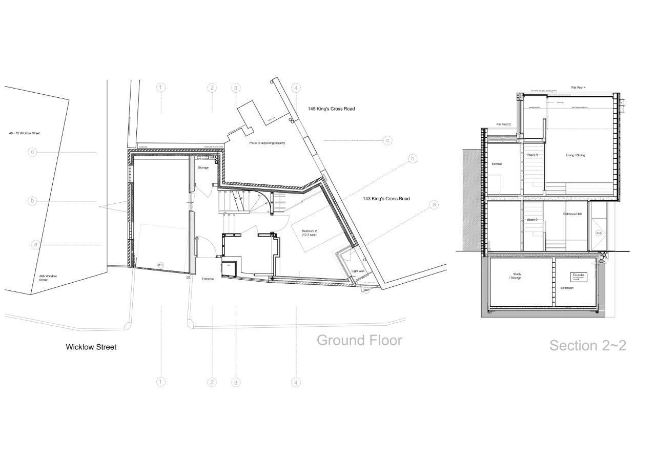
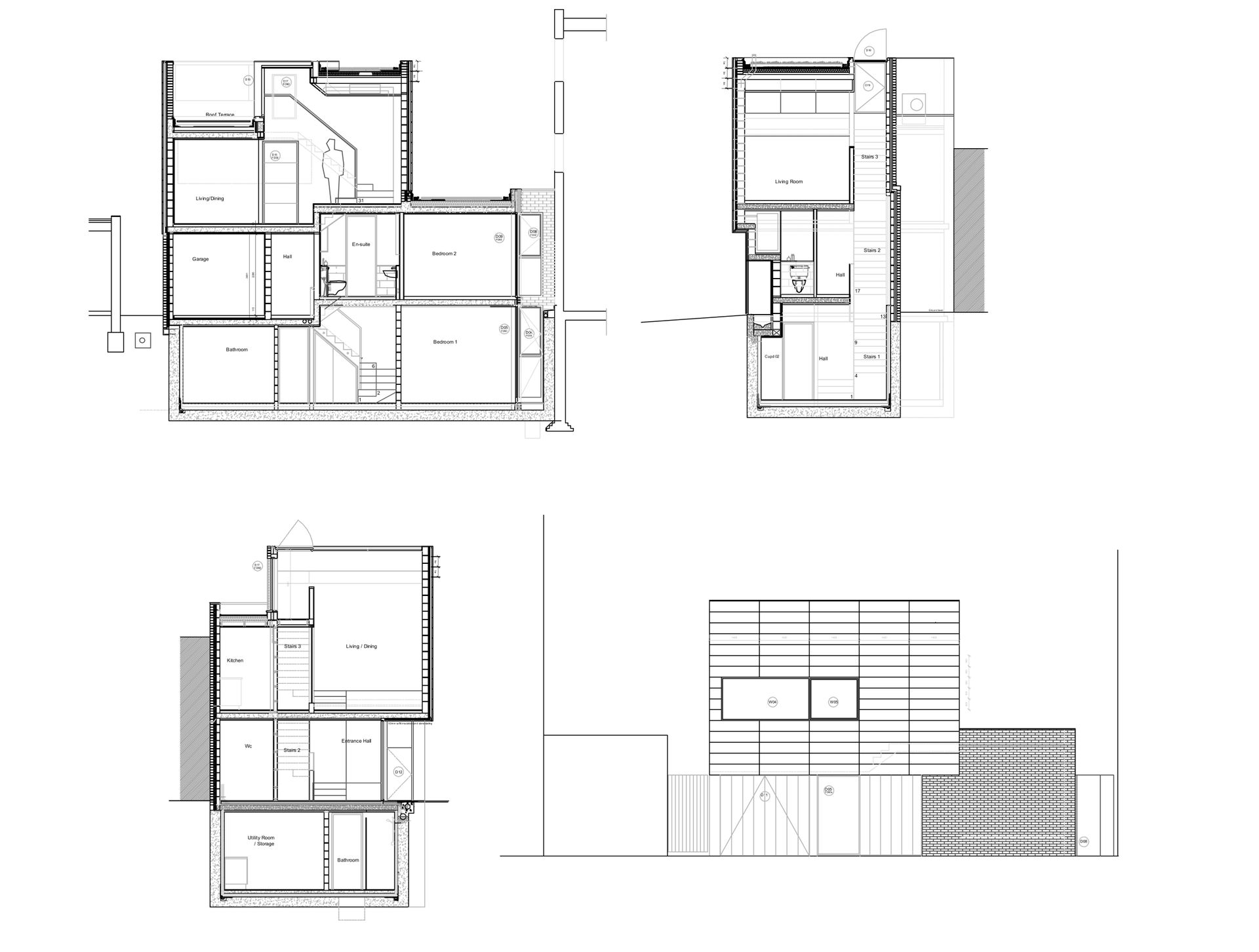
MSJ provided a full architectural, structural and party wall service for the new build, complicated infill site in Camden.
New build two storey detached single family dwelling with a basement. The Client bought the site with an unlawfully built section of the basement. The site is infill site between grade II listed building (6 storey block of flats) and 19th century terrace of four storey dwellings. The site is also within a conservation area. Modern approach was a right fit to create compact detached house in historic heart of Kings Cross.
Keep up To Date!
Keeping you updated on our past & present projects & processes.
























