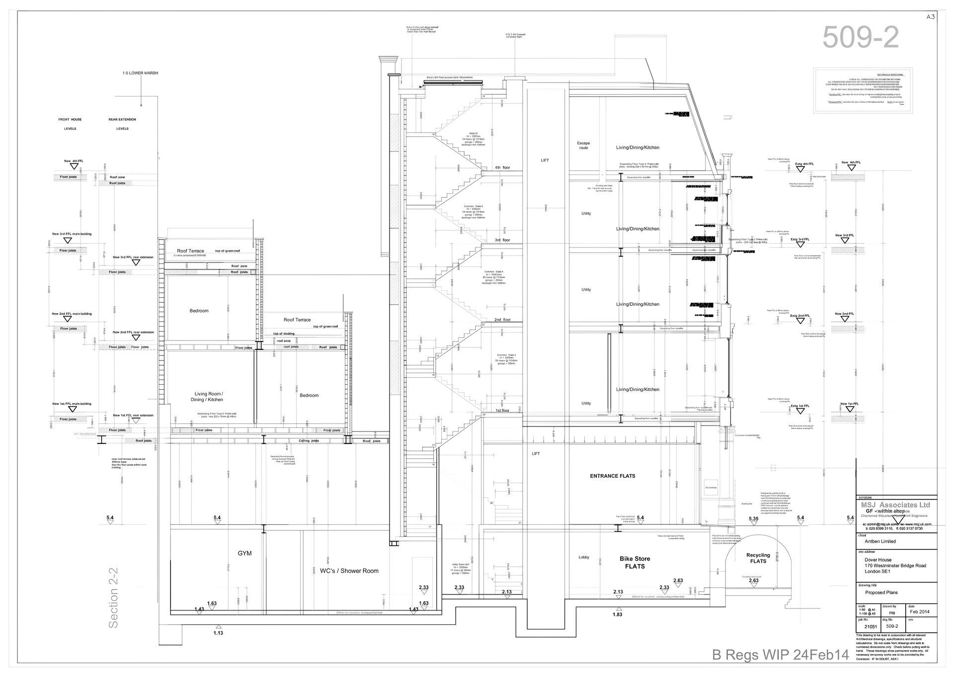
Dover House
Waterloo Extension, Remodelling and Renovation of Historic Building
MSJ provided a full architectural and structural service for the Developer/Contractor Client as a part of a team. The scheme included extensions, basement excavation and conversion of offices into 17 flats, a gym and a supermarket. The building was of great historic importance so preservation, conservation and innovation was our approach. This project required regular site inspections to assess the existing structures and deliver fast solutions for the team.
Keep up To Date!
Keeping you updated on our past & present projects & processes.




















