Times Sq Sutton
Times Sq Sutton
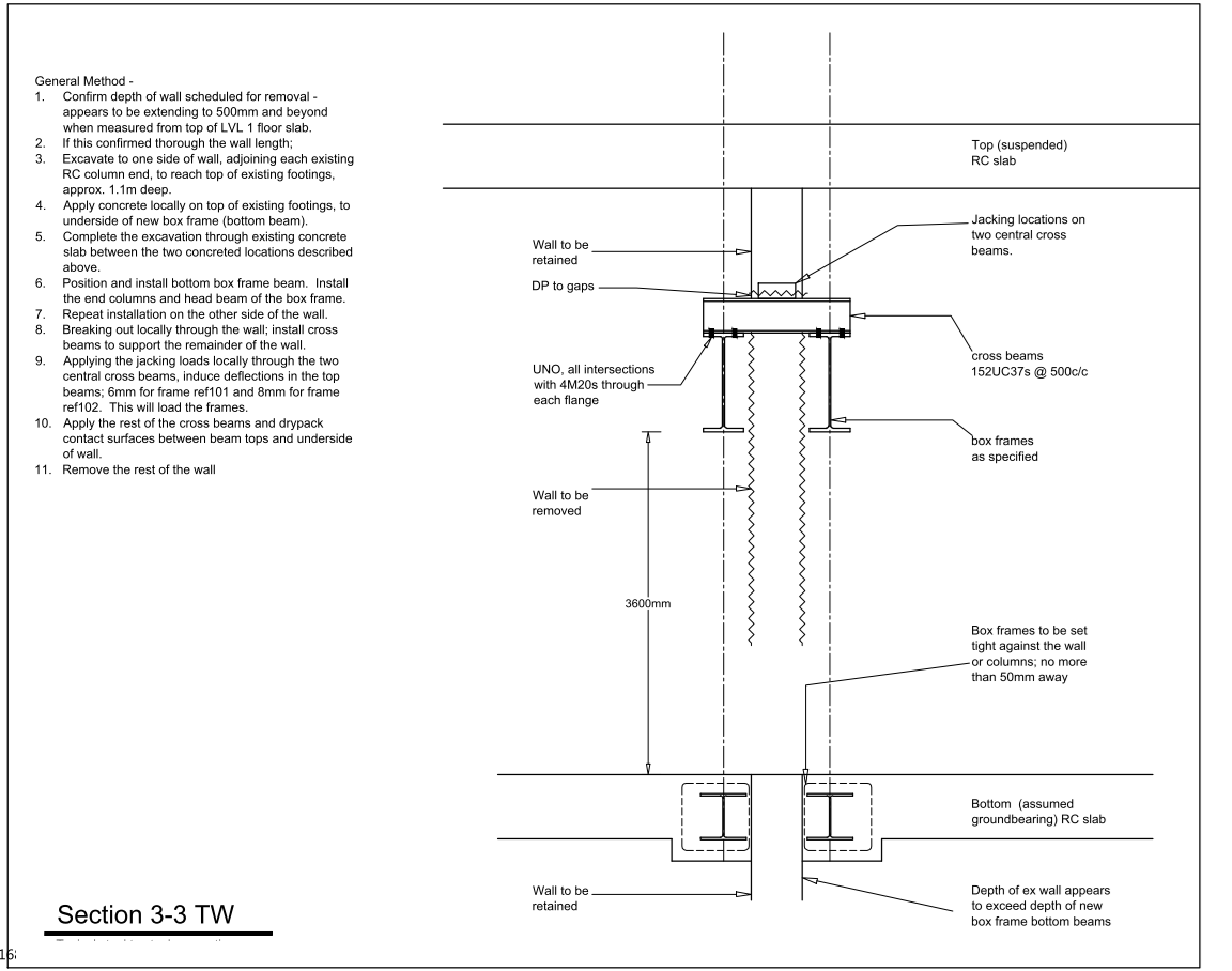
Times Square Sutton is a nine storey commercial use building, a RC structure with six storeys above ground and three stories of basement. The accommodation included offices, shopping centre and other commercial content. As a part of refurbishment, it was required that some reinforced concrete stability walls were removed in the lowest level of basement.
A couple of those were replaced with double steel frames and one was accommodated by means of stitching new steel bars reinforcement into the existing reinforced concrete walls and re-casting to new layout. Due to the overall sensitivity of the scheme, MSJ were asked to deliver not only just the permanent structures design, but also a temporary design for all structural works. The project was completed successfully in due course. MSJ clients were specialist Civil Works contractor, Eless Limited and the contract value was £1 million.
Keep up To Date!
Keeping you updated on our past & present projects & processes.








