Parsifal Road NW6
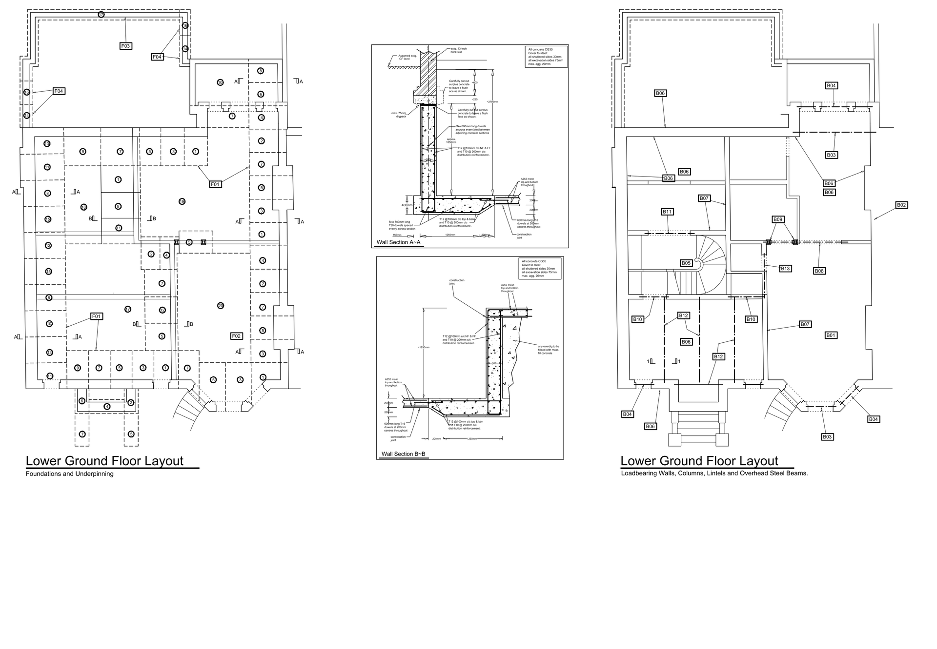
Parsifal Road was a residential development of a semi detached home in Hampstead, which included for excavation of a basement and provision of rear extensions at the ground in first floor.
The basement was created by means of traditional hit and miss underpinning, and upper levels as a mixture of steel framing and timber floor structures. MSJ were commissioned to provide permanent structures design. The contract value was £1.1 million and the architect was Stephen Fletcher architects.
Keep up To Date!
Keeping you updated on our past & present projects & processes.













