Old Brompton Road
South Kensington, Old Brompton Road Historic Building, Renovation and Extension
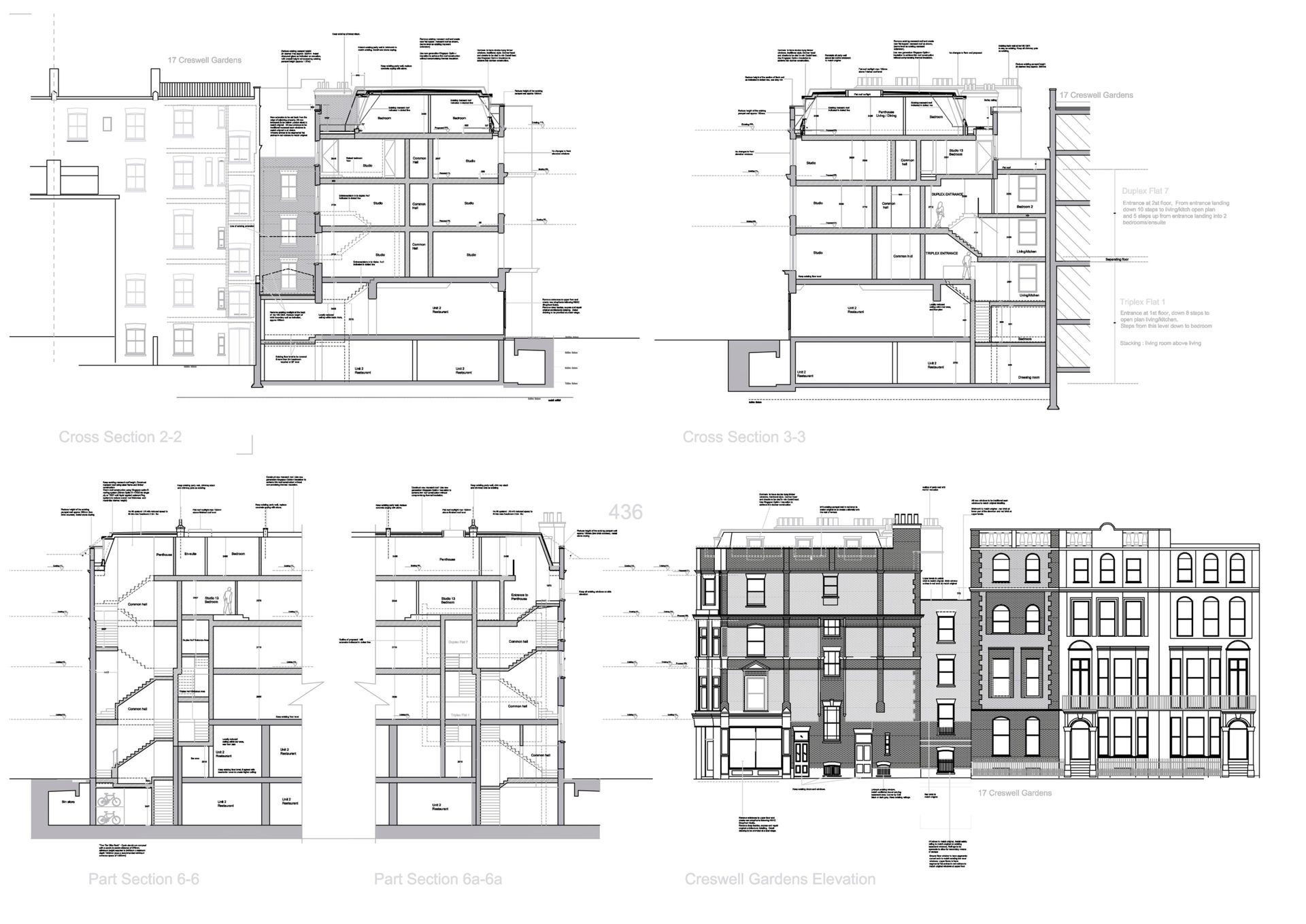
MSJ part of the Developer Client Team providing feasibility study, planning application and Clients brief for a Design and Build procurement. The proposals included change of use from HMO into residential, renovation/remodelling of existing building, including an infill extension into the adjacent building and addition of mansard roof extension including balconies at the rear. We worked closely with Conservation Officer and Clients interior design team to successful planning approval for 17 luxury apartments.
After the Planning Permission was received, we were part of Client’s team to prepare the Brief for the Design and Build contractor. This included full assessment of the buildings fabric and structural proposal.
Keep up To Date!
Keeping you updated on our past & present projects & processes.














