Lonsdale Square
Islington, Renovation, Extension and Garden Design
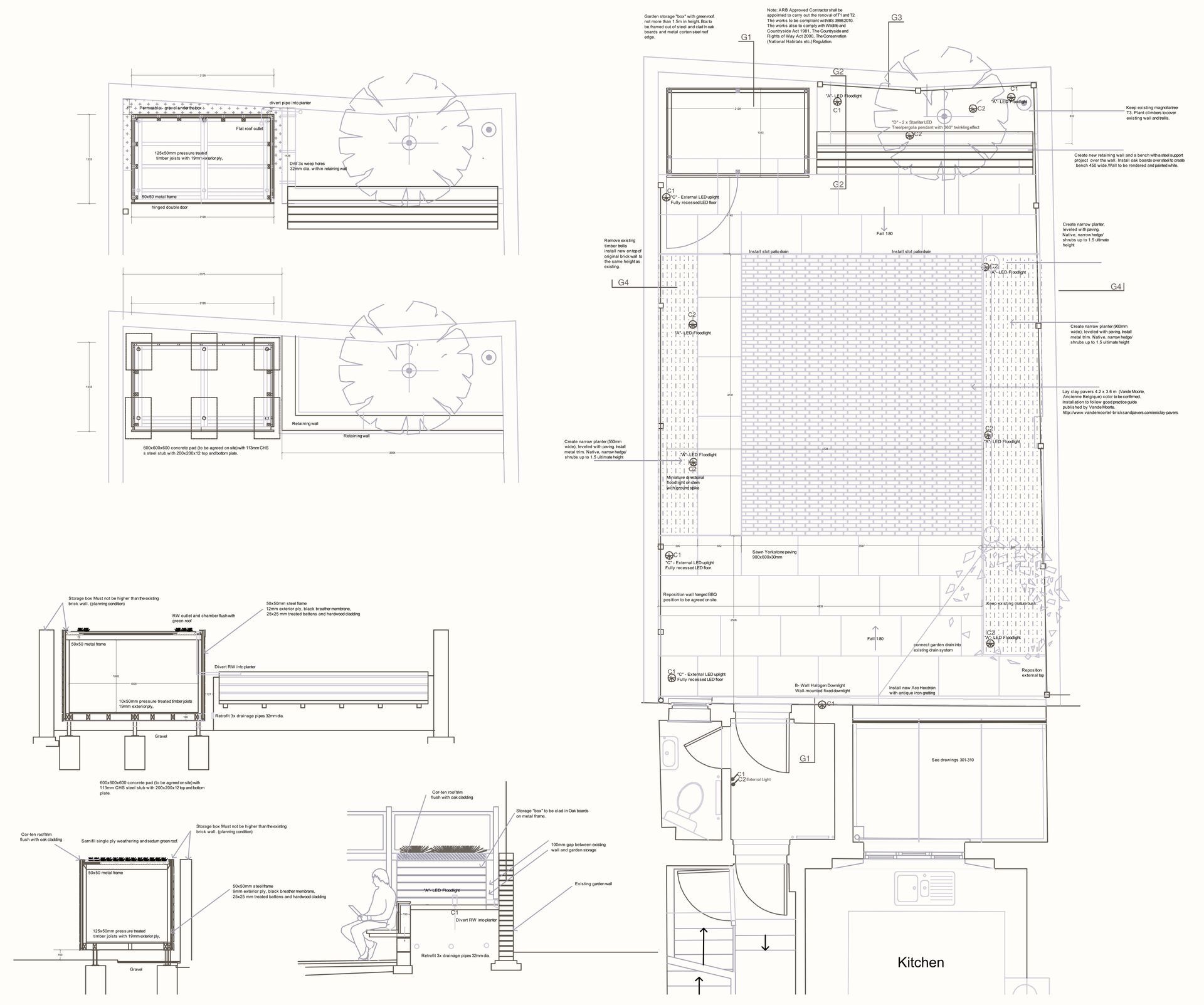
MSJ provided a full architectural, structural and party wall service for the renovation and closing up existing small light well, including garden design to a Grade II listed building.
The renovation proposals to the listed building were carried out sensibly and in close discussions with the Conservation Officer. Frameless glass enclosure was chosen to enclose the lightwell in order to minimise the impact of extension on the historic fabric. Choice of materials was important to compliment the building and add additional layer to this important historic setting.
Keep up To Date!
Keeping you updated on our past & present projects & processes.









