Elms Crescent
Balham, Remodelling, Renovation, Extension and Basement
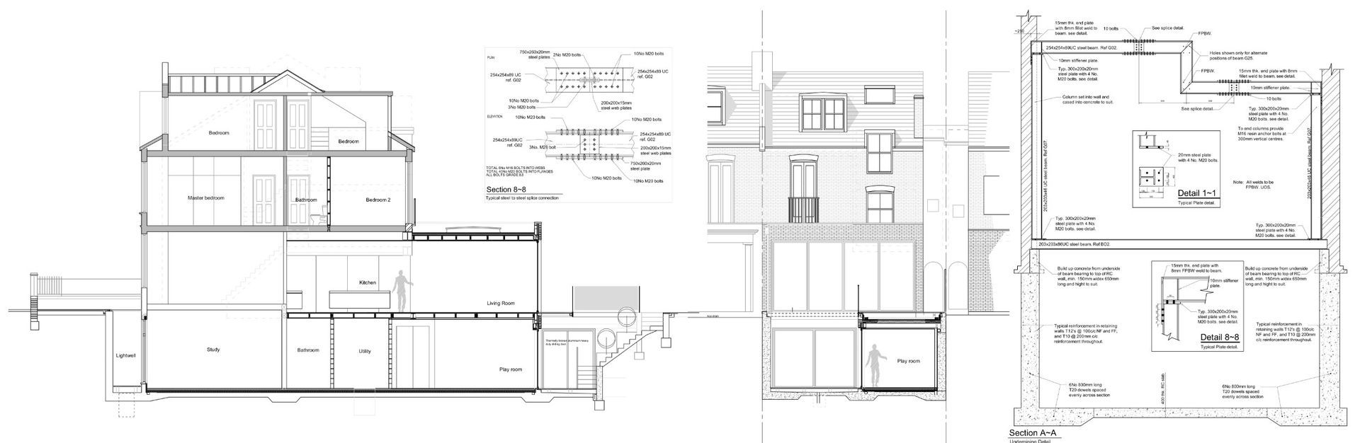
MSJ provided full architectural and structural service for the renovation and extensions and full basement for a three storey family house. The roof addition and full basement extension transformed this Victorian terraced house into modern, spacious and light family house.
Keep up To Date!
Keeping you updated on our past & present projects & processes.


















