Colnbrook Road
Southwark, Block of Flats, Remodelling, Extension and Renovation
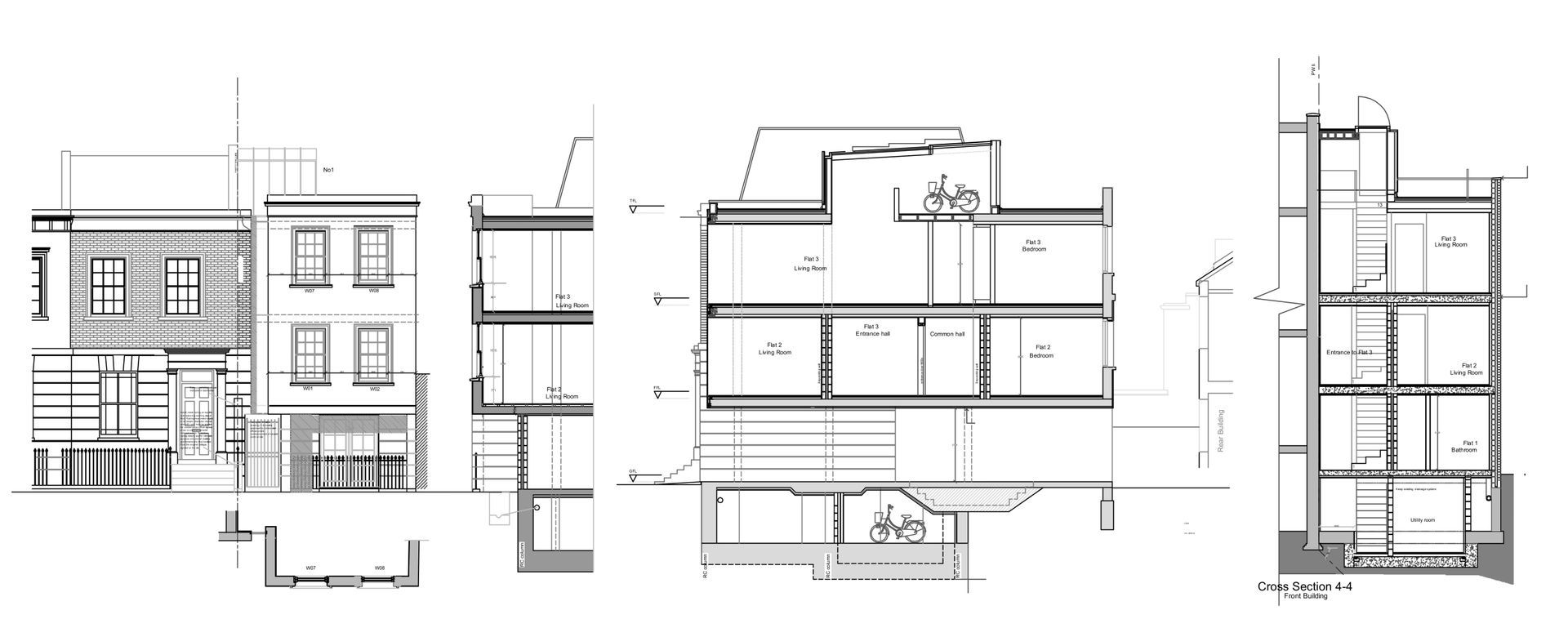
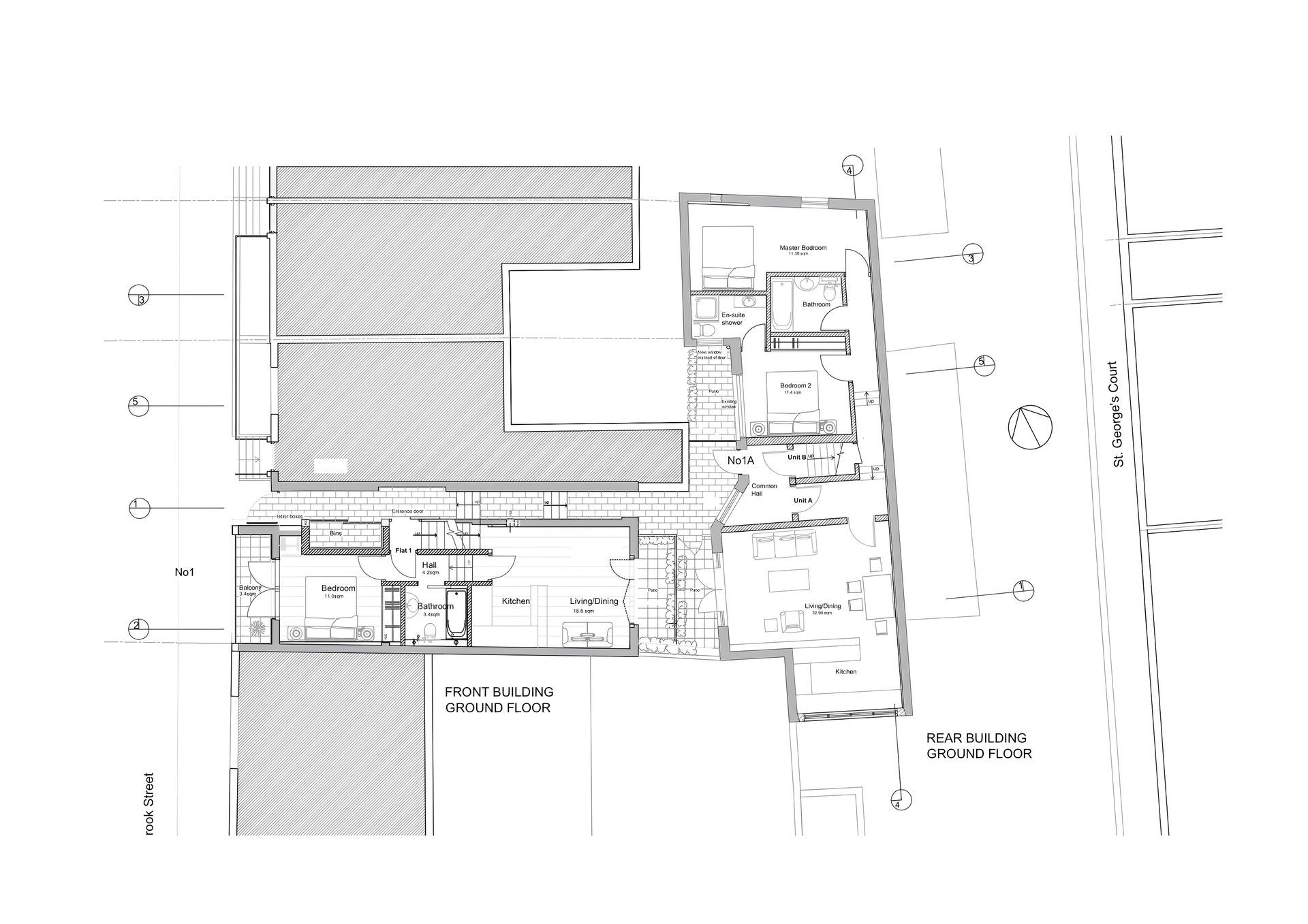
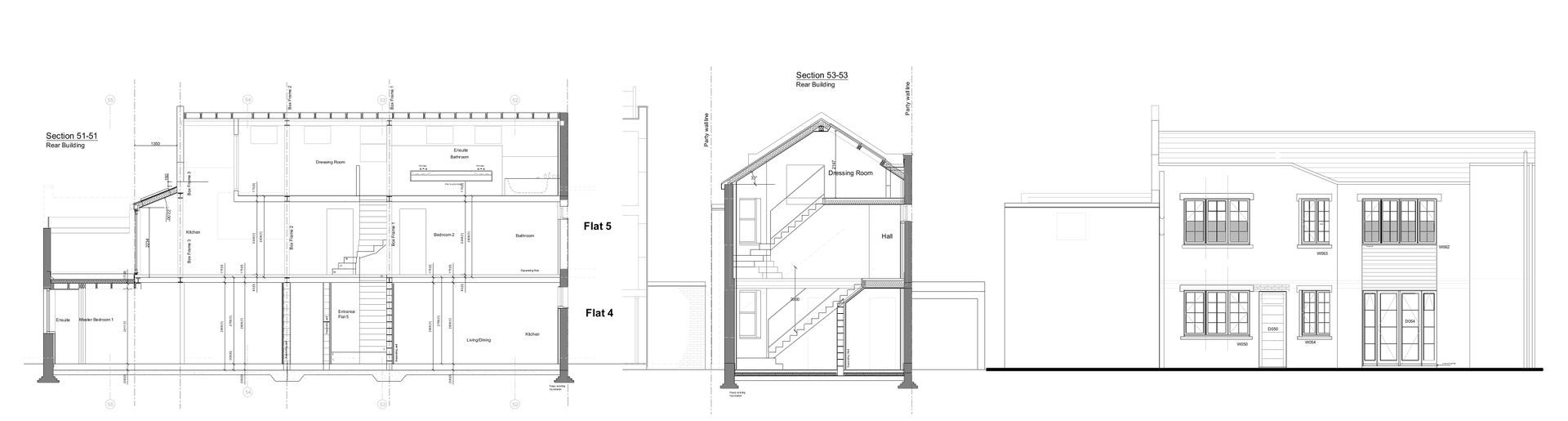
MSJ provided a full architectural, structural and party wall service for the change of use, renovation and extension of the end of terrace property within a Conservation area for Developer Client.
Property was located in the heart of the SE1 area of London, one part was modern and the partially derelict historic part was built between 1880 and 1910, historically used as a workshop.
The property was situated within the Conservation Area, adjoining the historically important Victorian terrace. The design called for a deep research of the character of historic setting and neighbourhood which resulted in sensitive proposal to the exterior and remodelling interior to create open-plan, split level apartments. The property was successfully converted into 5 modern apartments.
Keep up To Date!
Keeping you updated on our past & present projects & processes.




























